Description
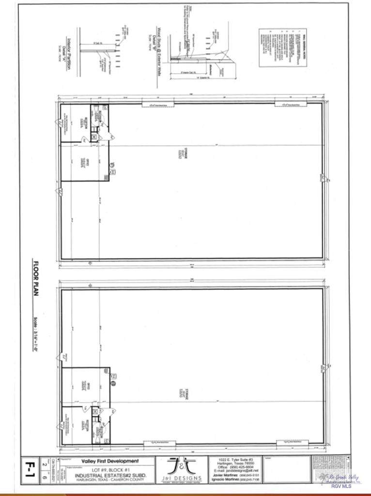
+/- 1.36 Acre Newly Sub-divided Industrial Lot available with four (4) 5,000 sf Warehouses with Shared access at Industrial Estates III - Unit 9 for Lease or Sale. +/- 5,000 sf Warehouses with +/- 570 sf office and 4,430 sf Warehouse. Graduated Ceiling Height and Two (2) 12' x 12' Grade Level Doors. Ingress/Egress from FM 509 [Paseo Real] and FM 106 [E Harrison] and located in the Harlingen Industrial Park - Phase III. Approximate Lot Dimensions 195' x 295'. Water. Sewer and Mowing costs are shared and billed through NNN charges. Electricity is separately metered. Seller is a General Contractor and can Build-to-Suit to your business requirements.
-
0BEDS
-
1.36ACRES
-
0BATHS
-
01/2 BATHS
School Ratings & Info
Description
+/- 1.36 Acre Newly Sub-divided Industrial Lot available with four (4) 5,000 sf Warehouses with Shared access at Industrial Estates III - Unit 9 for Lease or Sale. +/- 5,000 sf Warehouses with +/- 570 sf office and 4,430 sf Warehouse. Graduated Ceiling Height and Two (2) 12' x 12' Grade Level Doors. Ingress/Egress from FM 509 [Paseo Real] and FM 106 [E Harrison] and located in the Harlingen Industrial Park - Phase III. Approximate Lot Dimensions 195' x 295'. Water. Sewer and Mowing costs are shared and billed through NNN charges. Electricity is separately metered. Seller is a General Contractor and can Build-to-Suit to your business requirements.
